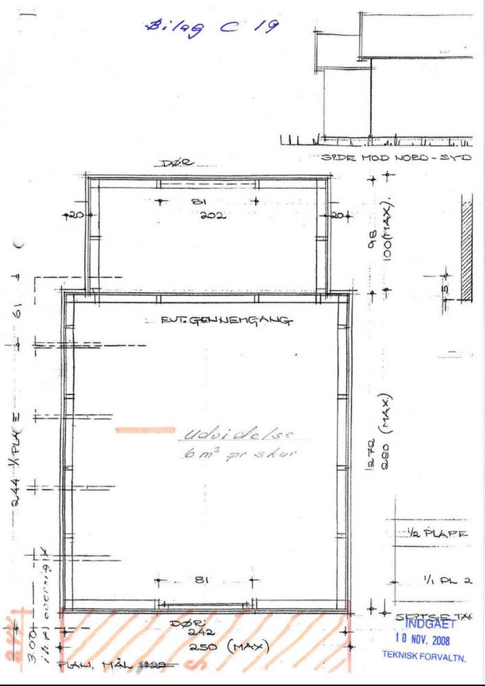
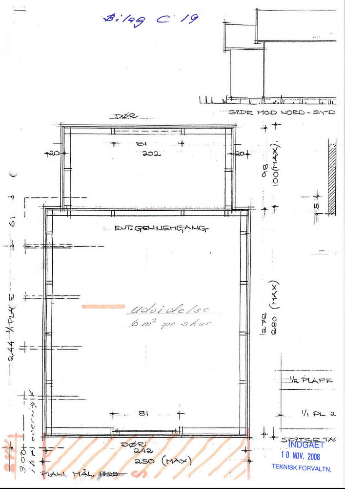
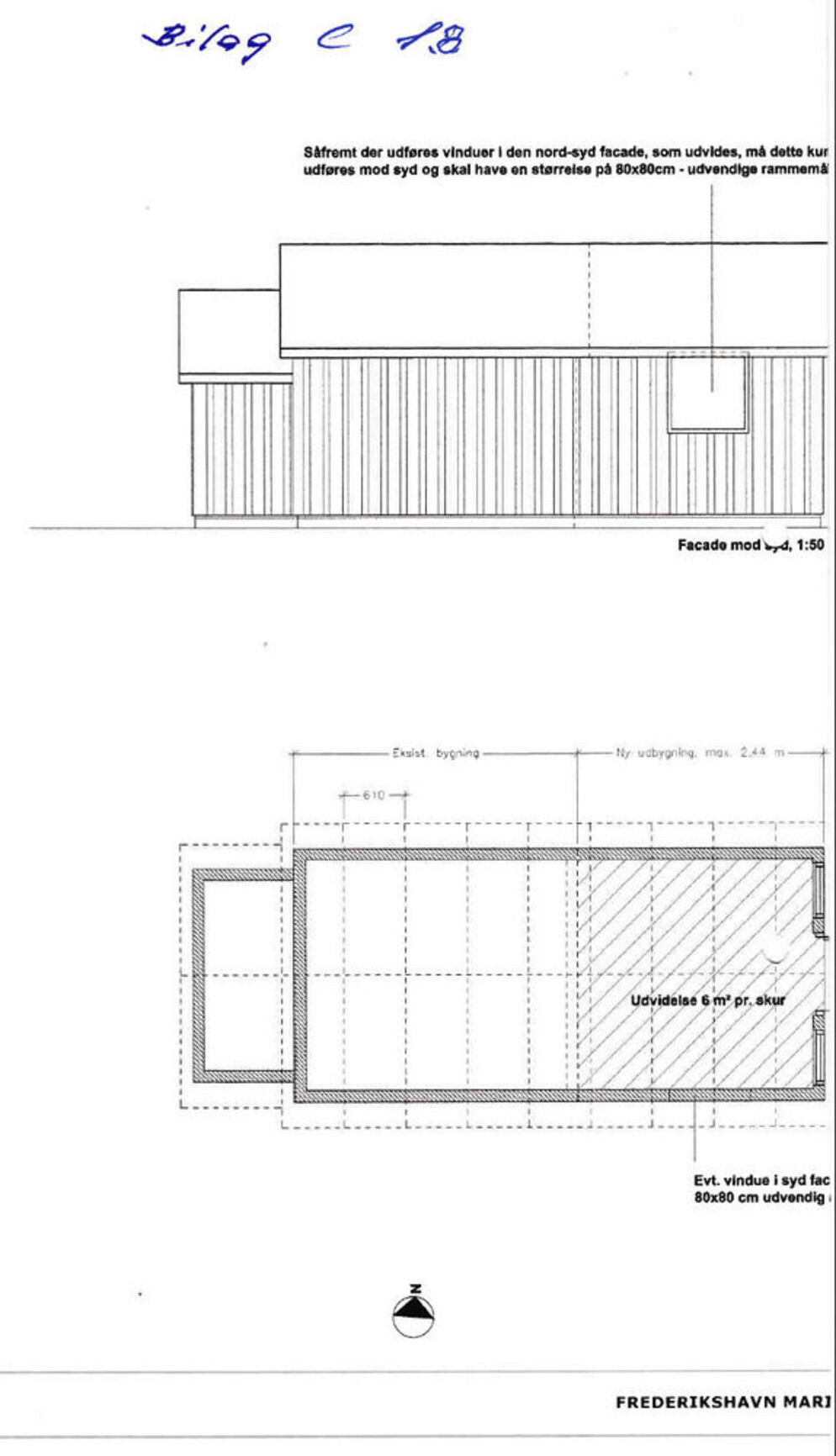
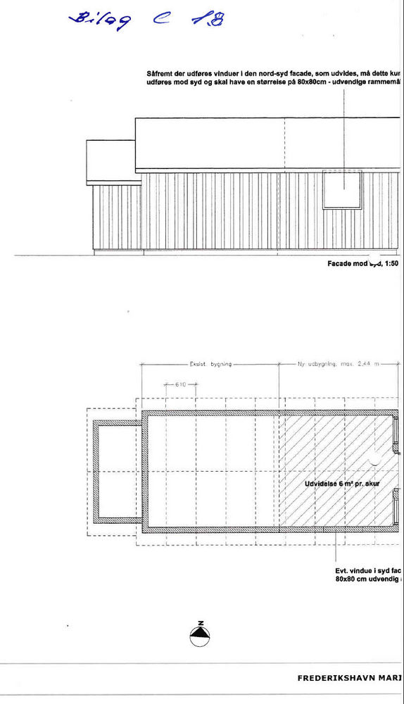
Godkendte tegninger til redskabshuse
Husene skal placeres og være opført i henhold til de af Frederikshavn Kommune godkendte tegninger, jf. nedenfor.
Husene skal placeres og være opført i henhold til de af Frederikshavn Kommune godkendte tegninger, jf. nedenfor.